24小时咨询热线

400-100-5313
10000元造价

当前位置:首页>家装案例

艺匠|新中式BS-206

累计访问量154次预约业主共128
艺匠|新中式BS-206
10000元
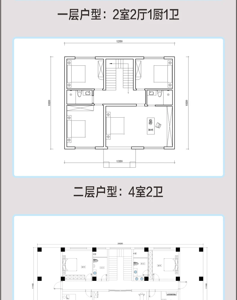
布局:6室3卫1厨2厅

编号:BS-206

户型:

面积:100㎡

风格:新中式

艺匠|新中式BS-206艺匠|新中式BS-206艺匠|新中式BS-206艺匠|新中式BS-206艺匠|新中式BS-206艺匠|新中式BS-206 2.2_01.jpg2.2_02.jpg2.2_03.jpg2.2_04.jpg3_01.jpg3_02.jpg3_03.jpg3_04.jpg3_05.jpg3_06.jpg

评价

    暂无评价内容。
验证码,看不清楚?请点击刷新验证码
满意度:
提交评论

我家装修成这样要花多少钱?

10秒快速报价...

立即报价

推荐案例

扫码联系微信客服

扫码关注小程序

扫码关注抖音

24小时热线电话:
400-100-5313
公司地址:

江西省南昌市青山湖区解放东路1919号仁德商业中心4栋4楼 首佳艺匠乡墅

©2025 - 江西首佳艺匠乡墅建筑工程有限公司 版权所有 手机版 | 赣ICP备2025073278号 | 技术支持:乐后屋装企营销系统